Triton Avant 15™

  • Hobsonville Point Intermediate music room showing a detailed section of the Avant 25 theatre Black ceiling installed into a grid & tile system.
Triton Avant 15™
Triton Avant 15™ is a made in NZ acoustic ceiling panel with single ply glass tissue facing for maximum economy. Panels are available in standard white and black. Panels fit to Rondo Donn® DX® exposed grid system.
Application 
Avant 15™ is ideal for retail shops, clubs, bars, restaurants, general office and schools where an economical black or white acoustic ceiling is desired.
Composition 
Manufactured in New Zealand from bio-soluble resin bonded glass fibre board finished with white or mat black glass tissue facer.

Benefits

Economical NRC 0.90 acoustic ceiling panel, ideal for price sensitive projects which prioritise price over performance.
Made in NZ, short lead times including replacement parts.
Fire Group 1-S.Economical white or black glass tissue facing.
NRC 0.90 for control of noise reverberation.
Durable and dimensionally stable in high humidity.
Light weight for seismic areas, easy to work and trim.

Technical Drawings

Triton Avant -Direct Fix
Triton Avant - Enclosed Coffer Ceiling
Triton Avant - 30mm Services Cavity
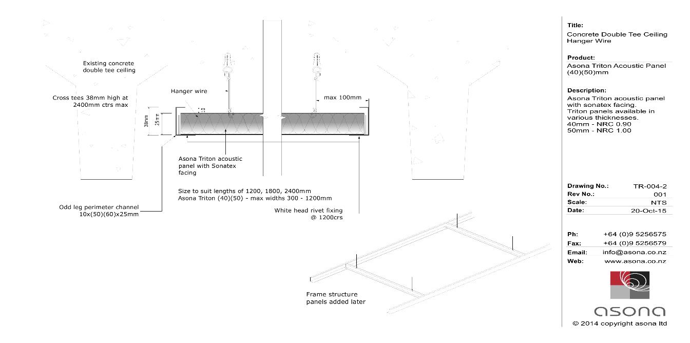
Triton Avant -Concrete Double tees
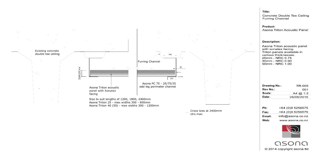
Triton Avant -Double Tees, Furring Channel
Triton Avant - Recessed downlight
Triton Avant - Flush Ceiling Join
Triton Avant - Raking Ceiling, Long Section
Triton Avant - Hip Roof Junction
Triton Avant - Apex Ceiling
Triton Avant - Raking Ceiling

Datasheets

Triton Avant 15™ Datasheet
Join our mailing list
Sign up to receive updates on new products & custom builds